
Als barrierefreier Wassersport im engeren Sinne wird hier die Aktivität mit Booten, Flößen und Schiffen für Menschen mit Behinderungen verstanden.
Der barrierefreie Wassersport sollte dadurch gekennzeichnet sein, dass er aktiv ausgeübt werden kann von Menschen mit unterschiedlichen Handicaps. Grundsätzlich können Menschen mit Handicap alle Wassersportarten ausüben, unter Beachtung der individuellen Leistungsgrenzen
Das Angebot an sicheren und einfach zu handhabenden Booten ist allerdings begrenzt. Insbesondere der sichere Einstieg/Ausstieg ist häufig problematisch und die Infrastruktur an Stegen oder Ufern ist meistens nicht optimal.
In der Regel ist eine Begleitperson für Handreichungen erforderlich. Ruderboote, Schlauchboote, Stand-up-Paddleboards und Kanus werden von Fall zu Fall mit Einschränkungen genutzt, aber immer mit der Gefahr des Kenterns.
Die angstfreie Zugänglichkeit zu einem Boot muss in jedem Fall gewährleistet sein. Für Menschen mit Behinderung bedeutet dies erst einmal barrierefreie Infrastruktur bis zur Wasserkante mit Haltemöglichkeiten am Rand.
Es müssen Schwimmstege und Pontons mit Rampen geringer Steigung ausgestattet sowie gut befestigte Wege und angepasste Sanitärräume vorhanden sein. Mit relativ geringem Aufwand kann ein Bereich für gefahrlosen Einstieg/Ausstieg in Wasserfahrzeuge für Menschen mit Handicap geschaffen werden.
Mit dem Trimaran „Combi-Tri“ gibt es erstmals ein Segelboot, das von Jedermann einfach und sicher gesegelt werden kann und eben auch von Menschen mit Handicap.
Das Boot hat die Maße Länge L – 4,6 m, Breite B – 3 m, Tiefgang T – 0,3 m, Masthöhe H – 6 m.
Es ist ausgelegt für 4 Personen, die im Cockpit ausreichend Platz haben.
Das Boot ist bis Windstärke 4 sicher zu segeln. Danach kann das Segel mit der endlosen Reffleine in Sekunden von einer Person allein gerefft werden. Dabei wird der Mast mit der Reffscheibe gedreht.
Nach knapp zehn Umdrehungen ist das Segel vollständig gerefft.
Man kann also immer eine dem eigenen Können und den Fähigkeiten entsprechende Segelfläche einstellen.
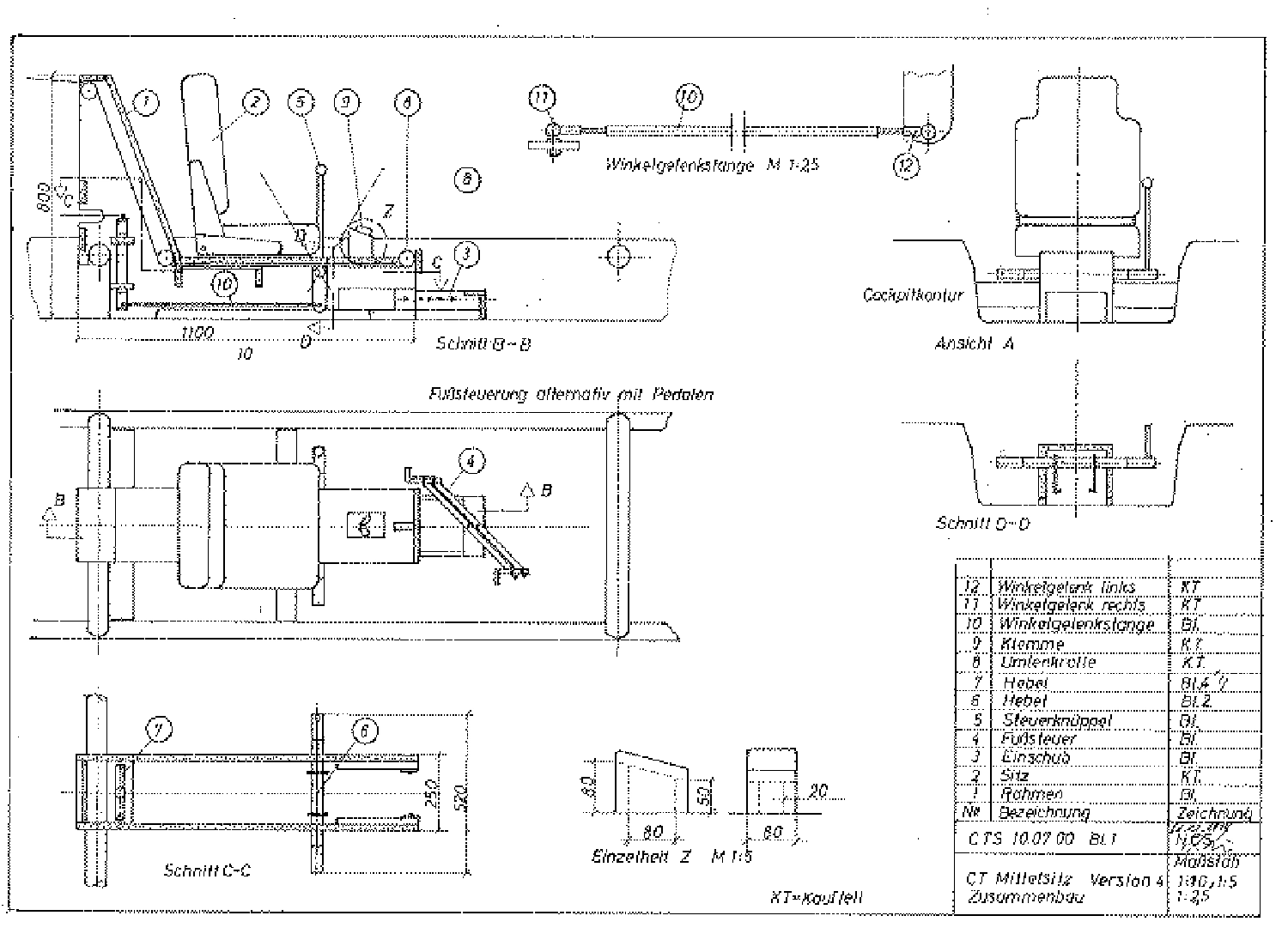
Menschen mit Behinderung können mit dem Mittelsitz den Combi Tri allein ohne Einschränkung nutzen. Die Maße und die Gestaltung des Sitzes sind genau passend auf den Combi Tri abgestimmt, so dass eine zusätzliche Sicherung nicht nötig ist. Der Mittelsitz wird in das Cockpit des CT gehoben und die Lenkgestänge werden mit der Pinne verbunden. Die Schot des Segels wird von achtern unter dem Sitzgestell auf eine Belegsäule vor dem Sitz geführt, wo auch die Reffleine positioniert ist. Gesteuert wird mit einer Seitenpinne oder alternativ mit Fußhebeln. Bis zu zwei Personen haben zusätzlich neben dem Segler .in im Cockpit Platz, was besonders für Training und Ausbildung ein wichtiges Argument ist.
Der/die Segler*in mit Handicap rutscht über das Trampolin in das Cockpit des Combi Tri direkt auf den Sitz. Mit einer einfach herstellbaren Infrastruktur am Steg oder am Strand kann der Combi-Tri bei Einsatz des Mittelsitzes von einem normalen Rollifahrer weitgehend allein und selbständig gesegelt werden.
Ein einziehbarer E-Außenbordmotor treibt das Boot im Hafen an und dient als „Flautenschieber“. Alle Funktionen sind vom Mittelsitz aus bedienbar.
Es besteht keine Gefahr eines überkommenden Segel-Baums oder Überbordgehens bei zu großer Krängung (Schräglage), das ist auch für blinde oder sehbehinderte Sportler ein wichtiges Argument. Dadurch, dass Freunde oder Betreuer mitfahren können, hat der Combi-Tri einen erheblichen Wert für den Breitensport, weil die gesamte Familie das Boot nutzen kann, mit oder ohne Mittelsitz. Der Combi Tri ist schnell und wendig und kann an jedem Strand anlanden.
Der Combi-Tri als System gestattet weitere unterschiedliche Einsatzmöglichkeiten auf Basis der gleichen Rumpfkonfiguration. Bei Einsatz des Mittelsitzes könnten Rollifahrer den Segelschein oder auch den Motorbootführerschein erwerben. Lediglich im praktischen Teil wäre er gebunden an den Einsatz mit dem Combi-Tri, aber die gesamte Theorie ist mit den normalen Anforderungen gleich.
Mit dem Combi Tri besteht erstmals die Möglichkeit, dass Sportler mit oder ohne Handicap sich auf einem normalen Sportboot miteinander messen können, bei gleichen Chancen auf den Gewinn.
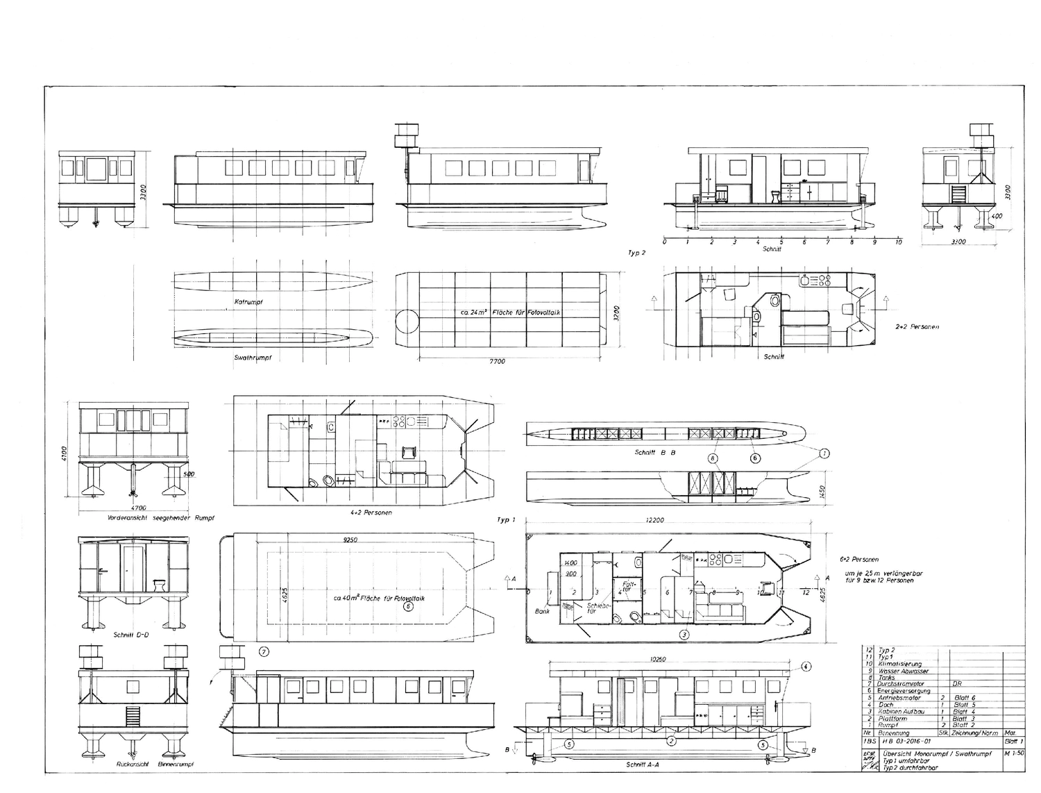
Hausboote für Menschen mit Handicap müssen in jedem Fall barrierefrei sein, d. h. ohne Schwellen und mit ca. 800 mm breiten Durchfahrtmöglichkeiten für Rollstühle. Wenn dies gewährleistet ist, kann ein solches Boot neben den Rollifahrern auch für alle sonstigen Nutzer mit oder ohne Handicap eingesetzt werden.
Bestehende Boote haben alle den Nachteil, dass Niedergänge, hohe Schwellen und zu enge Durchgänge den entspannten Aufenthalt z. B. für Rollifahrer unmöglich machen. Die hier vorgeschlagenen Hausboote sollen mit einer Durchgangsbreite von 0,8 m in Gängen und bei Türen durchgehend mit Rollstühlen befahrbar sein. Die lichte Höhe soll 2,1 m betragen.
Die Einrichtung soll ohne Barrieren sein, alle Schränke, Schubladen und Geräte gut erreichbar für Rollifahrer. Tische und Waschbecken unterfahrbar, Toilettenhöhe mind. 0,50 m und Betten mit einer Einstiegshöhe von 0,4 bis 0,5 m.